Get the free Building Permit Application Schedule A - rmofpiney mb
Show details
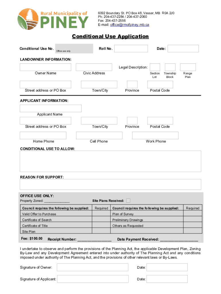
6092 Boundary St. PO Box 48, Vassar, MB R0A 2J0
pH: 2044372284 / 2044372060
Fax: 2044372556Email: office@rmofpiney.mb.caConditional Use Application
Conditional Use No. Roll No. Office use validate:LANDOWNER
We are not affiliated with any brand or entity on this form
Get, Create, Make and Sign building permit application schedule
Edit your building permit application schedule form online
Type text, complete fillable fields, insert images, highlight or blackout data for discretion, add comments, and more.
Add your legally-binding signature
Draw or type your signature, upload a signature image, or capture it with your digital camera.
Share your form instantly
Email, fax, or share your building permit application schedule form via URL. You can also download, print, or export forms to your preferred cloud storage service.
How to edit building permit application schedule online
Follow the steps down below to use a professional PDF editor:
1
Set up an account. If you are a new user, click Start Free Trial and establish a profile.
2
Upload a document. Select Add New on your Dashboard and transfer a file into the system in one of the following ways: by uploading it from your device or importing from the cloud, web, or internal mail. Then, click Start editing.
3
Edit building permit application schedule. Rearrange and rotate pages, add and edit text, and use additional tools. To save changes and return to your Dashboard, click Done. The Documents tab allows you to merge, divide, lock, or unlock files.
4
Get your file. Select your file from the documents list and pick your export method. You may save it as a PDF, email it, or upload it to the cloud.
pdfFiller makes working with documents easier than you could ever imagine. Register for an account and see for yourself!
Uncompromising security for your PDF editing and eSignature needs
Your private information is safe with pdfFiller. We employ end-to-end encryption, secure cloud storage, and advanced access control to protect your documents and maintain regulatory compliance.
How to fill out building permit application schedule
How to fill out building permit application schedule
01
Obtain a building permit application form from the local municipality or online.
02
Fill out all sections of the application form accurately and completely.
03
Provide all required supporting documents such as site plans, construction drawings, and structural calculations.
04
Pay the application fee as required.
05
Submit the completed application form and supporting documents to the local building department.
06
Await approval from the building department before starting any construction work.
Who needs building permit application schedule?
01
Anyone planning to undertake construction or renovation work on a building that requires a permit.
Fill
form
: Try Risk Free
For pdfFiller’s FAQs
Below is a list of the most common customer questions. If you can’t find an answer to your question, please don’t hesitate to reach out to us.
How do I edit building permit application schedule online?
pdfFiller not only lets you change the content of your files, but you can also change the number and order of pages. Upload your building permit application schedule to the editor and make any changes in a few clicks. The editor lets you black out, type, and erase text in PDFs. You can also add images, sticky notes, and text boxes, as well as many other things.
Can I sign the building permit application schedule electronically in Chrome?
You certainly can. You get not just a feature-rich PDF editor and fillable form builder with pdfFiller, but also a robust e-signature solution that you can add right to your Chrome browser. You may use our addon to produce a legally enforceable eSignature by typing, sketching, or photographing your signature with your webcam. Choose your preferred method and eSign your building permit application schedule in minutes.
How do I fill out building permit application schedule using my mobile device?
Use the pdfFiller mobile app to complete and sign building permit application schedule on your mobile device. Visit our web page (https://edit-pdf-ios-android.pdffiller.com/) to learn more about our mobile applications, the capabilities you’ll have access to, and the steps to take to get up and running.
What is building permit application schedule?
The building permit application schedule is a timeline that outlines the necessary steps and deadlines for submitting a building permit application.
Who is required to file building permit application schedule?
Contractors, developers, or property owners planning to start construction or renovation projects are required to file a building permit application schedule.
How to fill out building permit application schedule?
The building permit application schedule can be filled out by providing project details, estimated start and completion dates, required permits, and any other relevant information.
What is the purpose of building permit application schedule?
The purpose of the building permit application schedule is to ensure that construction projects are completed within a reasonable timeframe and in compliance with building codes and regulations.
What information must be reported on building permit application schedule?
The building permit application schedule must include project details, estimated timeline, required permits, contact information, and any other relevant information.
Fill out your building permit application schedule online with pdfFiller!
pdfFiller is an end-to-end solution for managing, creating, and editing documents and forms in the cloud. Save time and hassle by preparing your tax forms online.
Building Permit Application Schedule is not the form you're looking for?Search for another form here.
Relevant keywords
Related Forms
If you believe that this page should be taken down, please follow our DMCA take down process
here
.
This form may include fields for payment information. Data entered in these fields is not covered by PCI DSS compliance.