Get the free John Choate, Utility Manager - Vermont.gov
Show details
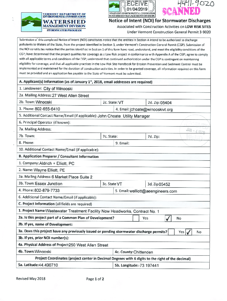
01/04/2019
\” ER]Move DEPARTMENT OF
ENXlItCNTIEXTUA\'ants\'Atlas\'WATERSHEDNotice of Intent(NO!)for Stormwater DischargesMANAGEMENT DIVISIONAssociated with Construction Activities on LOW RISK SITES0^CTCWMWATEK
We are not affiliated with any brand or entity on this form
Get, Create, Make and Sign john choate utility manager
Edit your john choate utility manager form online
Type text, complete fillable fields, insert images, highlight or blackout data for discretion, add comments, and more.
Add your legally-binding signature
Draw or type your signature, upload a signature image, or capture it with your digital camera.
Share your form instantly
Email, fax, or share your john choate utility manager form via URL. You can also download, print, or export forms to your preferred cloud storage service.
Editing john choate utility manager online
Follow the guidelines below to take advantage of the professional PDF editor:
1
Create an account. Begin by choosing Start Free Trial and, if you are a new user, establish a profile.
2
Prepare a file. Use the Add New button. Then upload your file to the system from your device, importing it from internal mail, the cloud, or by adding its URL.
3
Edit john choate utility manager. Rearrange and rotate pages, add and edit text, and use additional tools. To save changes and return to your Dashboard, click Done. The Documents tab allows you to merge, divide, lock, or unlock files.
4
Get your file. When you find your file in the docs list, click on its name and choose how you want to save it. To get the PDF, you can save it, send an email with it, or move it to the cloud.
With pdfFiller, dealing with documents is always straightforward. Try it right now!
Uncompromising security for your PDF editing and eSignature needs
Your private information is safe with pdfFiller. We employ end-to-end encryption, secure cloud storage, and advanced access control to protect your documents and maintain regulatory compliance.
How to fill out john choate utility manager
How to fill out john choate utility manager
01
Gather all necessary information such as account number, name, address, and contact details.
02
Navigate to the utility company's website or visit their office in person.
03
Locate the section for filling out or updating your utility manager information.
04
Enter John Choate's name and relevant details in the designated fields.
05
Double-check the information for accuracy and completeness before submitting the form.
Who needs john choate utility manager?
01
Anyone who wants to update or manage their utility account information with John Choate as the designated manager.
Fill
form
: Try Risk Free
For pdfFiller’s FAQs
Below is a list of the most common customer questions. If you can’t find an answer to your question, please don’t hesitate to reach out to us.
How do I make changes in john choate utility manager?
With pdfFiller, it's easy to make changes. Open your john choate utility manager in the editor, which is very easy to use and understand. When you go there, you'll be able to black out and change text, write and erase, add images, draw lines, arrows, and more. You can also add sticky notes and text boxes.
How do I edit john choate utility manager in Chrome?
Add pdfFiller Google Chrome Extension to your web browser to start editing john choate utility manager and other documents directly from a Google search page. The service allows you to make changes in your documents when viewing them in Chrome. Create fillable documents and edit existing PDFs from any internet-connected device with pdfFiller.
How do I edit john choate utility manager straight from my smartphone?
Using pdfFiller's mobile-native applications for iOS and Android is the simplest method to edit documents on a mobile device. You may get them from the Apple App Store and Google Play, respectively. More information on the apps may be found here. Install the program and log in to begin editing john choate utility manager.
What is john choate utility manager?
John Choate Utility Manager is a software tool designed to help manage utilities and track usage.
Who is required to file john choate utility manager?
Anyone responsible for managing utility usage and expenses may be required to file John Choate Utility Manager.
How to fill out john choate utility manager?
To fill out John Choate Utility Manager, you need to input detailed information about utility usage, expenses, and any other relevant data.
What is the purpose of john choate utility manager?
The purpose of John Choate Utility Manager is to help businesses or individuals effectively manage their utility usage and expenses.
What information must be reported on john choate utility manager?
Information such as utility usage data, expenses, payment history, and any patterns or trends in consumption may need to be reported on John Choate Utility Manager.
Fill out your john choate utility manager online with pdfFiller!
pdfFiller is an end-to-end solution for managing, creating, and editing documents and forms in the cloud. Save time and hassle by preparing your tax forms online.
John Choate Utility Manager is not the form you're looking for?Search for another form here.
Relevant keywords
Related Forms
If you believe that this page should be taken down, please follow our DMCA take down process
here
.
This form may include fields for payment information. Data entered in these fields is not covered by PCI DSS compliance.