Get the free WA ADJUDICATION APPLICATION FORM
Show details
Adjudicate Today Office Use Only
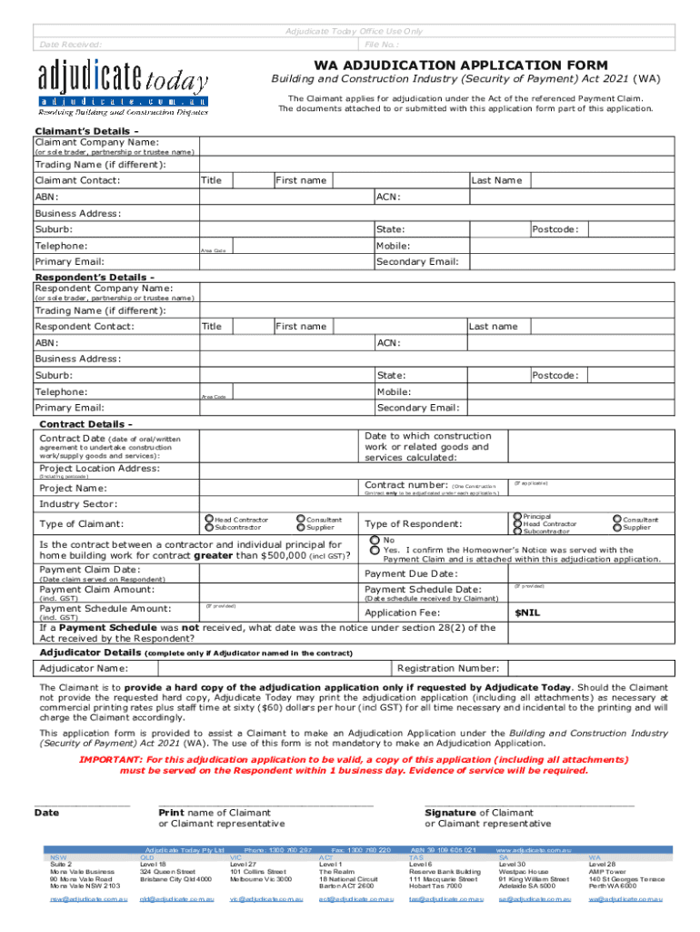
Date Received:File No.:WA ADJUDICATION APPLICATION Rebuilding and Construction Industry (Security of Payment) Act 2021 (WA)
The Claimant applies for adjudication under
We are not affiliated with any brand or entity on this form
Get, Create, Make and Sign wa adjudication application form
Edit your wa adjudication application form form online
Type text, complete fillable fields, insert images, highlight or blackout data for discretion, add comments, and more.
Add your legally-binding signature
Draw or type your signature, upload a signature image, or capture it with your digital camera.
Share your form instantly
Email, fax, or share your wa adjudication application form form via URL. You can also download, print, or export forms to your preferred cloud storage service.
Editing wa adjudication application form online
To use our professional PDF editor, follow these steps:
1
Check your account. If you don't have a profile yet, click Start Free Trial and sign up for one.
2
Simply add a document. Select Add New from your Dashboard and import a file into the system by uploading it from your device or importing it via the cloud, online, or internal mail. Then click Begin editing.
3
Edit wa adjudication application form. Replace text, adding objects, rearranging pages, and more. Then select the Documents tab to combine, divide, lock or unlock the file.
4
Get your file. Select the name of your file in the docs list and choose your preferred exporting method. You can download it as a PDF, save it in another format, send it by email, or transfer it to the cloud.
pdfFiller makes working with documents easier than you could ever imagine. Create an account to find out for yourself how it works!
Uncompromising security for your PDF editing and eSignature needs
Your private information is safe with pdfFiller. We employ end-to-end encryption, secure cloud storage, and advanced access control to protect your documents and maintain regulatory compliance.
How to fill out wa adjudication application form
How to fill out wa adjudication application form
01
Obtain a copy of the WA adjudication application form from the appropriate agency or website.
02
Read the instructions carefully to ensure you understand all the requirements.
03
Fill out your personal information, including name, address, and contact details.
04
Provide details about the dispute or issue that you are seeking adjudication for.
05
Attach any supporting documentation that may help your case, such as contracts, emails, or photos.
06
Sign and date the form before submitting it to the relevant authority.
Who needs wa adjudication application form?
01
Anyone involved in a dispute or issue that requires a neutral third party to make a decision or provide a resolution may need to fill out a WA adjudication application form.
Fill
form
: Try Risk Free
For pdfFiller’s FAQs
Below is a list of the most common customer questions. If you can’t find an answer to your question, please don’t hesitate to reach out to us.
How can I manage my wa adjudication application form directly from Gmail?
Using pdfFiller's Gmail add-on, you can edit, fill out, and sign your wa adjudication application form and other papers directly in your email. You may get it through Google Workspace Marketplace. Make better use of your time by handling your papers and eSignatures.
How can I modify wa adjudication application form without leaving Google Drive?
By integrating pdfFiller with Google Docs, you can streamline your document workflows and produce fillable forms that can be stored directly in Google Drive. Using the connection, you will be able to create, change, and eSign documents, including wa adjudication application form, all without having to leave Google Drive. Add pdfFiller's features to Google Drive and you'll be able to handle your documents more effectively from any device with an internet connection.
How do I fill out wa adjudication application form using my mobile device?
You can quickly make and fill out legal forms with the help of the pdfFiller app on your phone. Complete and sign wa adjudication application form and other documents on your mobile device using the application. If you want to learn more about how the PDF editor works, go to pdfFiller.com.
What is wa adjudication application form?
The WA Adjudication Application form is a document used to file a request for adjudication of a payment dispute in the construction industry in Western Australia.
Who is required to file wa adjudication application form?
Any party involved in a construction contract dispute in Western Australia may be required to file the WA Adjudication Application form.
How to fill out wa adjudication application form?
The WA Adjudication Application form can be filled out by providing all the required information, including details of the construction contract, the payment dispute, and any supporting documents.
What is the purpose of wa adjudication application form?
The purpose of the WA Adjudication Application form is to request an independent adjudicator to resolve payment disputes quickly and efficiently in the construction industry.
What information must be reported on wa adjudication application form?
The WA Adjudication Application form requires information about the construction contract, the payment dispute, any relevant documents, and the details of the parties involved.
Fill out your wa adjudication application form online with pdfFiller!
pdfFiller is an end-to-end solution for managing, creating, and editing documents and forms in the cloud. Save time and hassle by preparing your tax forms online.
Wa Adjudication Application Form is not the form you're looking for?Search for another form here.
Relevant keywords
Related Forms
If you believe that this page should be taken down, please follow our DMCA take down process
here
.
This form may include fields for payment information. Data entered in these fields is not covered by PCI DSS compliance.