Get the free Planning Application Form - City of San Mateo
Show details
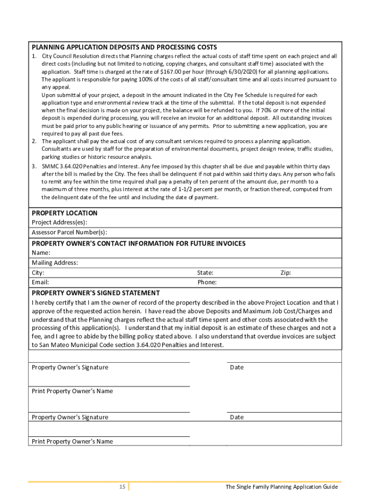
The Single Family Planning Application Guide City of San Mateo Planning Division 330 West 20th Avenue San Mateo, CA 94403 (650) 5227212Community Development Department www.cityofsanmateo.org planning@cityofsanmateo.org
We are not affiliated with any brand or entity on this form
Get, Create, Make and Sign planning application form
Edit your planning application form form online
Type text, complete fillable fields, insert images, highlight or blackout data for discretion, add comments, and more.
Add your legally-binding signature
Draw or type your signature, upload a signature image, or capture it with your digital camera.
Share your form instantly
Email, fax, or share your planning application form form via URL. You can also download, print, or export forms to your preferred cloud storage service.
Editing planning application form online
Use the instructions below to start using our professional PDF editor:
1
Log in to account. Click Start Free Trial and register a profile if you don't have one.
2
Prepare a file. Use the Add New button to start a new project. Then, using your device, upload your file to the system by importing it from internal mail, the cloud, or adding its URL.
3
Edit planning application form. Rearrange and rotate pages, add and edit text, and use additional tools. To save changes and return to your Dashboard, click Done. The Documents tab allows you to merge, divide, lock, or unlock files.
4
Get your file. Select your file from the documents list and pick your export method. You may save it as a PDF, email it, or upload it to the cloud.
Dealing with documents is simple using pdfFiller.
Uncompromising security for your PDF editing and eSignature needs
Your private information is safe with pdfFiller. We employ end-to-end encryption, secure cloud storage, and advanced access control to protect your documents and maintain regulatory compliance.
How to fill out planning application form
How to fill out planning application form
01
Read the instructions and guidelines provided by the local planning authority.
02
Gather all required documents and information needed for the application.
03
Fill out the application form accurately and completely, ensuring all details are provided.
04
Attach any relevant supporting documents or plans to the application form.
05
Submit the completed form to the appropriate department or authority within the specified timeframe.
06
Follow up with the planning authority for any further information or updates on your application.
Who needs planning application form?
01
Anyone who wants to make changes or developments to a property or land that requires planning permission.
Fill
form
: Try Risk Free
For pdfFiller’s FAQs
Below is a list of the most common customer questions. If you can’t find an answer to your question, please don’t hesitate to reach out to us.
How do I edit planning application form straight from my smartphone?
The pdfFiller mobile applications for iOS and Android are the easiest way to edit documents on the go. You may get them from the Apple Store and Google Play. More info about the applications here. Install and log in to edit planning application form.
How do I fill out the planning application form form on my smartphone?
Use the pdfFiller mobile app to fill out and sign planning application form. Visit our website (https://edit-pdf-ios-android.pdffiller.com/) to learn more about our mobile applications, their features, and how to get started.
How do I edit planning application form on an iOS device?
You can. Using the pdfFiller iOS app, you can edit, distribute, and sign planning application form. Install it in seconds at the Apple Store. The app is free, but you must register to buy a subscription or start a free trial.
What is planning application form?
Planning application form is a document that needs to be filled out when applying for permission to carry out development or changes to a property.
Who is required to file planning application form?
Property developers, homeowners, and businesses are required to file a planning application form when seeking permission for development or changes to a property.
How to fill out planning application form?
To fill out a planning application form, applicants need to provide detailed information about the proposed development, including plans, drawings, and other relevant documentation.
What is the purpose of planning application form?
The purpose of a planning application form is to allow local authorities to assess proposed developments or changes to ensure they comply with planning regulations and policies.
What information must be reported on planning application form?
Information required on a planning application form includes details of the proposed development, site plans, drawings, and any other relevant documentation requested by the local authority.
Fill out your planning application form online with pdfFiller!
pdfFiller is an end-to-end solution for managing, creating, and editing documents and forms in the cloud. Save time and hassle by preparing your tax forms online.
Planning Application Form is not the form you're looking for?Search for another form here.
Relevant keywords
Related Forms
If you believe that this page should be taken down, please follow our DMCA take down process
here
.
This form may include fields for payment information. Data entered in these fields is not covered by PCI DSS compliance.