Get the free task 3 assesment report 3 (png)
Show details
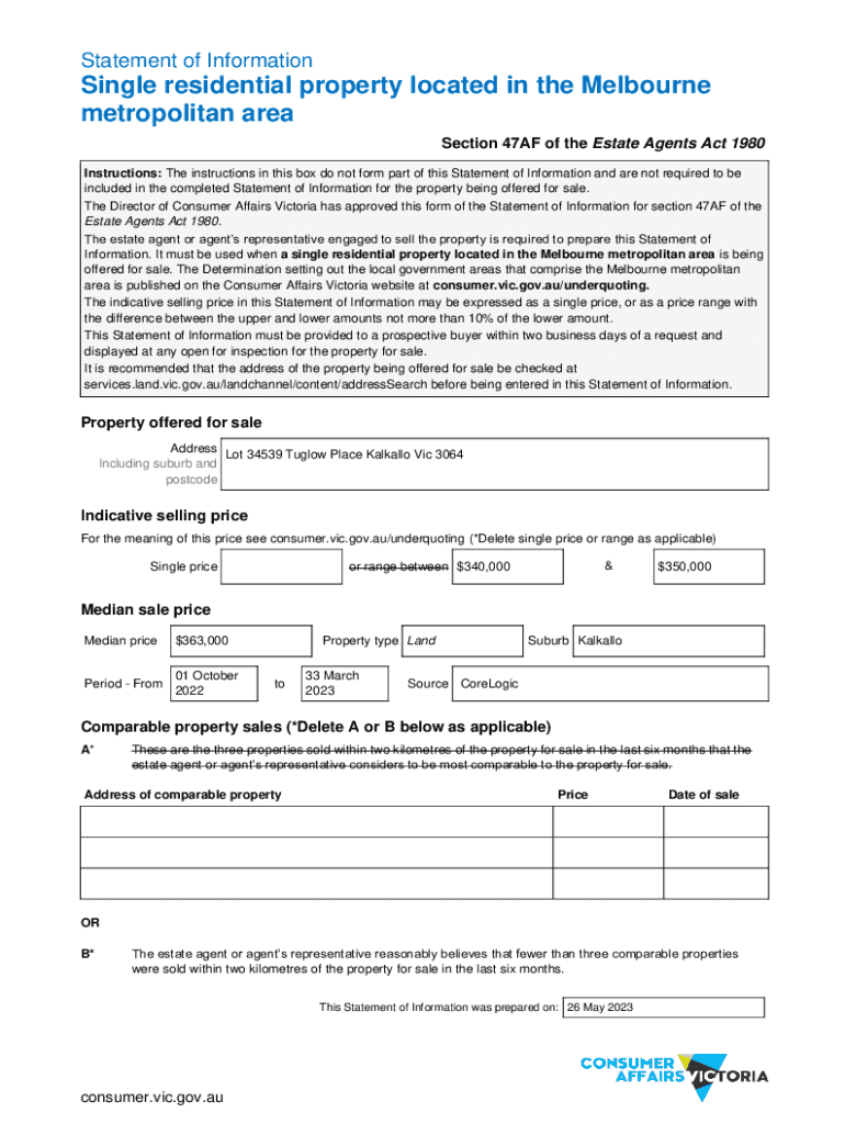
Statement of InformationSingle residential property located in the Melbourne metropolitan area Section 47AF of the Estate Agents Act 1980 Instructions: The instructions in this box do not form part
We are not affiliated with any brand or entity on this form
Get, Create, Make and Sign task 3 assesment report
Edit your task 3 assesment report form online
Type text, complete fillable fields, insert images, highlight or blackout data for discretion, add comments, and more.
Add your legally-binding signature
Draw or type your signature, upload a signature image, or capture it with your digital camera.
Share your form instantly
Email, fax, or share your task 3 assesment report form via URL. You can also download, print, or export forms to your preferred cloud storage service.
Editing task 3 assesment report online
To use the professional PDF editor, follow these steps below:
1
Log in to account. Click on Start Free Trial and register a profile if you don't have one.
2
Prepare a file. Use the Add New button. Then upload your file to the system from your device, importing it from internal mail, the cloud, or by adding its URL.
3
Edit task 3 assesment report. Add and replace text, insert new objects, rearrange pages, add watermarks and page numbers, and more. Click Done when you are finished editing and go to the Documents tab to merge, split, lock or unlock the file.
4
Save your file. Choose it from the list of records. Then, shift the pointer to the right toolbar and select one of the several exporting methods: save it in multiple formats, download it as a PDF, email it, or save it to the cloud.
Uncompromising security for your PDF editing and eSignature needs
Your private information is safe with pdfFiller. We employ end-to-end encryption, secure cloud storage, and advanced access control to protect your documents and maintain regulatory compliance.
How to fill out task 3 assesment report
How to fill out task 3 assesment report
01
Read the instructions provided for task 3 assessment report.
02
Gather all relevant data and information needed for the report.
03
Clearly define the objectives and goals of the assessment.
04
Organize the information in a structured manner, including an introduction, methodology, results, and conclusion.
05
Analyze the data and present findings in a clear and concise manner.
06
Include recommendations for improvement or further action based on the assessment.
07
Proofread and edit the report for any errors before submission.
Who needs task 3 assesment report?
01
Anyone who is involved in a project or task that requires assessment and evaluation.
02
Managers or supervisors who need to make informed decisions based on assessment reports.
03
Organizations or companies looking to improve their processes or strategies based on assessment outcomes.
Fill
form
: Try Risk Free
For pdfFiller’s FAQs
Below is a list of the most common customer questions. If you can’t find an answer to your question, please don’t hesitate to reach out to us.
How can I edit task 3 assesment report from Google Drive?
Using pdfFiller with Google Docs allows you to create, amend, and sign documents straight from your Google Drive. The add-on turns your task 3 assesment report into a dynamic fillable form that you can manage and eSign from anywhere.
How do I fill out task 3 assesment report using my mobile device?
Use the pdfFiller mobile app to fill out and sign task 3 assesment report. Visit our website (https://edit-pdf-ios-android.pdffiller.com/) to learn more about our mobile applications, their features, and how to get started.
Can I edit task 3 assesment report on an iOS device?
You can. Using the pdfFiller iOS app, you can edit, distribute, and sign task 3 assesment report. Install it in seconds at the Apple Store. The app is free, but you must register to buy a subscription or start a free trial.
What is task 3 assesment report?
Task 3 assessment report is a document that evaluates the performance and outcomes of a specific task or project.
Who is required to file task 3 assesment report?
The individuals or organizations responsible for the task or project are required to file the task 3 assessment report.
How to fill out task 3 assesment report?
Task 3 assessment report can be filled out by providing detailed information on the task objectives, strategies, activities, outcomes, and lessons learned.
What is the purpose of task 3 assesment report?
The purpose of task 3 assessment report is to assess the effectiveness and efficiency of the task or project, identify areas of improvement, and communicate the results to stakeholders.
What information must be reported on task 3 assesment report?
Information that must be reported on task 3 assessment report includes task goals, progress updates, challenges faced, resources utilized, and impact assessment.
Fill out your task 3 assesment report online with pdfFiller!
pdfFiller is an end-to-end solution for managing, creating, and editing documents and forms in the cloud. Save time and hassle by preparing your tax forms online.
Task 3 Assesment Report is not the form you're looking for?Search for another form here.
Relevant keywords
Related Forms
If you believe that this page should be taken down, please follow our DMCA take down process
here
.
This form may include fields for payment information. Data entered in these fields is not covered by PCI DSS compliance.