Get the free Contractor Registration, Permitting and Inspections for Solar
Show details
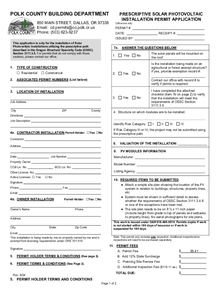
POLK COUNTY BUILDING DEPARTMENTPRESCRIPTIVE SOLAR PHOTOVOLTAIC INSTALLATION PERMIT APPLICATION850 MAIN STREET, DALLAS, OR 97338 Email: cd.permits@co.polk.or.us Phone: (503) 6239237Office use only:PERMIT
We are not affiliated with any brand or entity on this form
Get, Create, Make and Sign contractor registration permitting and
Edit your contractor registration permitting and form online
Type text, complete fillable fields, insert images, highlight or blackout data for discretion, add comments, and more.
Add your legally-binding signature
Draw or type your signature, upload a signature image, or capture it with your digital camera.
Share your form instantly
Email, fax, or share your contractor registration permitting and form via URL. You can also download, print, or export forms to your preferred cloud storage service.
Editing contractor registration permitting and online
Follow the guidelines below to use a professional PDF editor:
1
Log in to account. Start Free Trial and register a profile if you don't have one yet.
2
Simply add a document. Select Add New from your Dashboard and import a file into the system by uploading it from your device or importing it via the cloud, online, or internal mail. Then click Begin editing.
3
Edit contractor registration permitting and. Add and change text, add new objects, move pages, add watermarks and page numbers, and more. Then click Done when you're done editing and go to the Documents tab to merge or split the file. If you want to lock or unlock the file, click the lock or unlock button.
4
Get your file. When you find your file in the docs list, click on its name and choose how you want to save it. To get the PDF, you can save it, send an email with it, or move it to the cloud.
With pdfFiller, it's always easy to work with documents.
Uncompromising security for your PDF editing and eSignature needs
Your private information is safe with pdfFiller. We employ end-to-end encryption, secure cloud storage, and advanced access control to protect your documents and maintain regulatory compliance.
How to fill out contractor registration permitting and
How to fill out contractor registration permitting and
01
To fill out contractor registration permitting, follow these steps:
02
Gather all necessary documents, including proof of insurance, proof of certification or license, and any other required documentation.
03
Visit the official website of the contracting registration permitting authority.
04
Look for the application form for contractor registration permitting.
05
Fill out all the required fields in the application form, such as personal information, contact details, and business details.
06
Attach all the necessary documents to the application form.
07
Double-check all the information and documents to ensure accuracy.
08
Submit the filled-out application form and the accompanying documents to the contracting registration permitting authority.
09
Pay any required fees for the registration process, if applicable.
10
Wait for the authority to review your application and process the registration.
11
Once approved, you will receive your contractor registration permitting.
12
Note: The exact process may vary depending on the specific jurisdiction and requirements of the contracting registration permitting authority. It is recommended to refer to the official guidelines and instructions provided by the authority.
Who needs contractor registration permitting and?
01
Contractor registration permitting is needed by individuals or businesses who engage in contracting or construction activities.
02
The following may require contractor registration permitting:
03
- General contractors
04
- Specialty contractors
05
- Construction companies
06
- Remodeling contractors
07
- Electrical contractors
08
- Plumbing contractors
09
- HVAC contractors
10
- Roofing contractors
11
- And others involved in the construction industry.
12
The specific requirements for contractor registration permitting may vary depending on the jurisdiction and local regulations. It is important to check with the relevant authority to determine if contractor registration permitting is required for your specific situation.
Fill
form
: Try Risk Free
For pdfFiller’s FAQs
Below is a list of the most common customer questions. If you can’t find an answer to your question, please don’t hesitate to reach out to us.
How can I get contractor registration permitting and?
The premium subscription for pdfFiller provides you with access to an extensive library of fillable forms (over 25M fillable templates) that you can download, fill out, print, and sign. You won’t have any trouble finding state-specific contractor registration permitting and and other forms in the library. Find the template you need and customize it using advanced editing functionalities.
How can I edit contractor registration permitting and on a smartphone?
The pdfFiller apps for iOS and Android smartphones are available in the Apple Store and Google Play Store. You may also get the program at https://edit-pdf-ios-android.pdffiller.com/. Open the web app, sign in, and start editing contractor registration permitting and.
How do I fill out contractor registration permitting and using my mobile device?
You can easily create and fill out legal forms with the help of the pdfFiller mobile app. Complete and sign contractor registration permitting and and other documents on your mobile device using the application. Visit pdfFiller’s webpage to learn more about the functionalities of the PDF editor.
What is contractor registration permitting?
Contractor registration permitting is a process that requires contractors to register with local or state authorities, ensuring they meet specific legal and regulatory standards to operate legally.
Who is required to file contractor registration permitting?
All contractors, including general contractors, subcontractors, and specialized trade contractors, are required to file for contractor registration permitting before they can legally begin work.
How to fill out contractor registration permitting?
To fill out contractor registration permitting, contractors must complete the designated application form, provide necessary documentation such as proof of qualifications, insurance, and business registration, and submit the form to the appropriate authority.
What is the purpose of contractor registration permitting?
The purpose of contractor registration permitting is to maintain a regulated and accountable contracting industry, ensuring that only qualified individuals and companies can perform construction-related work.
What information must be reported on contractor registration permitting?
Contractor registration permitting typically requires reporting information such as business name, contact information, license number, insurance details, and qualifications of the contractor.
Fill out your contractor registration permitting and online with pdfFiller!
pdfFiller is an end-to-end solution for managing, creating, and editing documents and forms in the cloud. Save time and hassle by preparing your tax forms online.
Contractor Registration Permitting And is not the form you're looking for?Search for another form here.
Relevant keywords
Related Forms
If you believe that this page should be taken down, please follow our DMCA take down process
here
.
This form may include fields for payment information. Data entered in these fields is not covered by PCI DSS compliance.