Get the free CEQA Database User Guide - Office of Planning and Research - docs bakersfieldcity
Show details
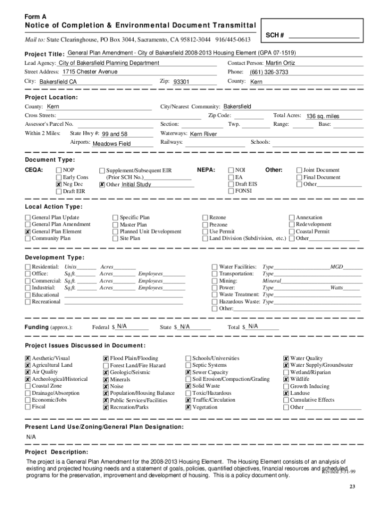
Form A California State Clearinghouse Handbook 23 Notice of Completion & Environmental Document Transmittal Mail to: State Clearinghouse, PO Box 3044, Sacramento, CA 958123044 916/4450613SCH #Project
We are not affiliated with any brand or entity on this form
Get, Create, Make and Sign ceqa database user guide
Edit your ceqa database user guide form online
Type text, complete fillable fields, insert images, highlight or blackout data for discretion, add comments, and more.
Add your legally-binding signature
Draw or type your signature, upload a signature image, or capture it with your digital camera.
Share your form instantly
Email, fax, or share your ceqa database user guide form via URL. You can also download, print, or export forms to your preferred cloud storage service.
How to edit ceqa database user guide online
Here are the steps you need to follow to get started with our professional PDF editor:
1
Register the account. Begin by clicking Start Free Trial and create a profile if you are a new user.
2
Prepare a file. Use the Add New button to start a new project. Then, using your device, upload your file to the system by importing it from internal mail, the cloud, or adding its URL.
3
Edit ceqa database user guide. Add and change text, add new objects, move pages, add watermarks and page numbers, and more. Then click Done when you're done editing and go to the Documents tab to merge or split the file. If you want to lock or unlock the file, click the lock or unlock button.
4
Get your file. Select the name of your file in the docs list and choose your preferred exporting method. You can download it as a PDF, save it in another format, send it by email, or transfer it to the cloud.
pdfFiller makes working with documents easier than you could ever imagine. Try it for yourself by creating an account!
Uncompromising security for your PDF editing and eSignature needs
Your private information is safe with pdfFiller. We employ end-to-end encryption, secure cloud storage, and advanced access control to protect your documents and maintain regulatory compliance.
How to fill out ceqa database user guide
How to fill out ceqa database user guide
01
Here is a step-by-step guide on how to fill out the CEQA (California Environmental Quality Act) database user guide:
02
Begin by accessing the CEQA database user guide through the official website or platform designated by the relevant authorities.
03
Familiarize yourself with the purpose and instructions provided in the user guide to understand its use and scope.
04
Carefully review the required fields and information that must be entered into the CEQA database.
05
Gather all the necessary data and documents that are required for the specific purpose of using the CEQA database.
06
Start filling out the user guide by entering the provided information in the designated fields. Pay close attention to accuracy and completeness.
07
Follow any specific formatting or data entry rules provided within the user guide.
08
Double-check all the entered information for any errors or omissions before proceeding.
09
Save the completed user guide or submit it according to the instructions provided by the CEQA database platform.
10
If necessary, seek assistance from the relevant authorities or support channels if there are any difficulties or uncertainties during the process.
11
Ensure that you have taken all necessary steps to secure and protect the confidentiality and integrity of the user guide and associated information.
12
Remember that this is a general guide, and it is essential to refer to the official CEQA database user guide for specific and up-to-date instructions.
Who needs ceqa database user guide?
01
The CEQA database user guide is primarily needed by individuals or organizations involved in the environmental planning and review process in California.
02
This may include professionals such as environmental consultants, regulatory agencies, project developers, land use planners, and legal experts.
03
Additionally, individuals or entities interested in understanding the CEQA database and its functionalities may also benefit from the user guide.
04
Applicants or stakeholders who need to register, submit, or access information within the CEQA database should refer to the user guide for guidance.
05
The user guide can provide valuable assistance to those who need to navigate the CEQA database efficiently and ensure compliance with relevant regulations and procedures.
Fill
form
: Try Risk Free
For pdfFiller’s FAQs
Below is a list of the most common customer questions. If you can’t find an answer to your question, please don’t hesitate to reach out to us.
How can I edit ceqa database user guide from Google Drive?
You can quickly improve your document management and form preparation by integrating pdfFiller with Google Docs so that you can create, edit and sign documents directly from your Google Drive. The add-on enables you to transform your ceqa database user guide into a dynamic fillable form that you can manage and eSign from any internet-connected device.
Can I create an eSignature for the ceqa database user guide in Gmail?
When you use pdfFiller's add-on for Gmail, you can add or type a signature. You can also draw a signature. pdfFiller lets you eSign your ceqa database user guide and other documents right from your email. In order to keep signed documents and your own signatures, you need to sign up for an account.
How do I fill out the ceqa database user guide form on my smartphone?
You can easily create and fill out legal forms with the help of the pdfFiller mobile app. Complete and sign ceqa database user guide and other documents on your mobile device using the application. Visit pdfFiller’s webpage to learn more about the functionalities of the PDF editor.
What is ceqa database user guide?
The CEQA Database User Guide is a document that provides instructions and guidance on how to use the CEQA (California Environmental Quality Act) database, which is utilized for reporting environmental impact assessments and compliance.
Who is required to file ceqa database user guide?
Entities involved in projects covered by the California Environmental Quality Act, including public agencies, developers, and consultants, are required to file documentation related to the CEQA database.
How to fill out ceqa database user guide?
To fill out the CEQA Database User Guide, follow the step-by-step instructions provided in the guide itself, including entering relevant project information, environmental impact details, and compliance documentation.
What is the purpose of ceqa database user guide?
The purpose of the CEQA Database User Guide is to ensure consistent and accurate reporting of environmental information and impacts associated with projects, facilitating compliance with CEQA regulations.
What information must be reported on ceqa database user guide?
The information that must be reported includes project descriptions, environmental impacts, mitigation measures, public comments, and any other relevant details required by CEQA.
Fill out your ceqa database user guide online with pdfFiller!
pdfFiller is an end-to-end solution for managing, creating, and editing documents and forms in the cloud. Save time and hassle by preparing your tax forms online.
Ceqa Database User Guide is not the form you're looking for?Search for another form here.
Relevant keywords
Related Forms
If you believe that this page should be taken down, please follow our DMCA take down process
here
.
This form may include fields for payment information. Data entered in these fields is not covered by PCI DSS compliance.