
Get the free 3900 Woodland Avenue
Show details
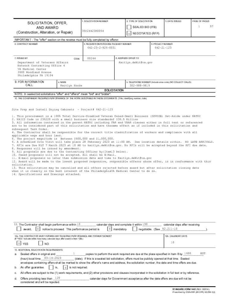
1. SOLICITATION NUMBERSOLICITATION, OFFER,
AND AWARD
(Construction, Alteration, or Repair)2. TYPE OF SOLICITATION3. DATE ISSUEDPAGE OF PAGES1SEALED BID (IF)
36C24423R0064X57NEGOTIATED (RFP)IMPORTANT
We are not affiliated with any brand or entity on this form
Get, Create, Make and Sign 3900 woodland avenue

Edit your 3900 woodland avenue form online
Type text, complete fillable fields, insert images, highlight or blackout data for discretion, add comments, and more.

Add your legally-binding signature
Draw or type your signature, upload a signature image, or capture it with your digital camera.

Share your form instantly
Email, fax, or share your 3900 woodland avenue form via URL. You can also download, print, or export forms to your preferred cloud storage service.
Editing 3900 woodland avenue online
To use our professional PDF editor, follow these steps:
1
Check your account. It's time to start your free trial.
2
Prepare a file. Use the Add New button to start a new project. Then, using your device, upload your file to the system by importing it from internal mail, the cloud, or adding its URL.
3
Edit 3900 woodland avenue. Text may be added and replaced, new objects can be included, pages can be rearranged, watermarks and page numbers can be added, and so on. When you're done editing, click Done and then go to the Documents tab to combine, divide, lock, or unlock the file.
4
Get your file. Select your file from the documents list and pick your export method. You may save it as a PDF, email it, or upload it to the cloud.
With pdfFiller, dealing with documents is always straightforward. Try it right now!
Uncompromising security for your PDF editing and eSignature needs
Your private information is safe with pdfFiller. We employ end-to-end encryption, secure cloud storage, and advanced access control to protect your documents and maintain regulatory compliance.
How to fill out 3900 woodland avenue

How to fill out 3900 woodland avenue
01
To fill out 3900 woodland avenue, follow these steps:
02
Start by providing your full name in the designated field.
03
Enter your contact information, including your phone number and email address.
04
Provide additional personal information such as your date of birth and social security number if required.
05
Specify the purpose of filling out 3900 woodland avenue, whether it is for a rental application, job application, or any other relevant purpose.
06
Fill out the requested details about the property itself, including the address, zip code, and any specific instructions provided.
07
Verify all the information you have entered before submitting the form.
08
Once you are satisfied with the accuracy of the filled-out form, submit it through the specified method, such as online submission, in-person delivery, or mailing it to the appropriate recipient.
Who needs 3900 woodland avenue?
01
Anyone who is required to provide a completed 3900 woodland avenue form may need it. The specific individuals or organizations that require this form may vary depending on the purpose stated on the form. It could be a landlord, employer, government agency, or any other party requesting the information provided on the form.
Fill
form
: Try Risk Free
For pdfFiller’s FAQs
Below is a list of the most common customer questions. If you can’t find an answer to your question, please don’t hesitate to reach out to us.
How do I complete 3900 woodland avenue online?
pdfFiller has made it easy to fill out and sign 3900 woodland avenue. You can use the solution to change and move PDF content, add fields that can be filled in, and sign the document electronically. Start a free trial of pdfFiller, the best tool for editing and filling in documents.
How do I edit 3900 woodland avenue straight from my smartphone?
The pdfFiller mobile applications for iOS and Android are the easiest way to edit documents on the go. You may get them from the Apple Store and Google Play. More info about the applications here. Install and log in to edit 3900 woodland avenue.
How can I fill out 3900 woodland avenue on an iOS device?
Download and install the pdfFiller iOS app. Then, launch the app and log in or create an account to have access to all of the editing tools of the solution. Upload your 3900 woodland avenue from your device or cloud storage to open it, or input the document URL. After filling out all of the essential areas in the document and eSigning it (if necessary), you may save it or share it with others.
What is 3900 woodland avenue?
3900 Woodland Avenue refers to a specific location, likely an address, but without further context, it is unclear what the significance of this address is.
Who is required to file 3900 woodland avenue?
Without additional context, it cannot be determined who is required to file anything related to 3900 Woodland Avenue, as this may pertain to a variety of regulations or requirements.
How to fill out 3900 woodland avenue?
Instructions on how to fill out forms related to 3900 Woodland Avenue will depend on the specific context or document in question. Additional details are necessary to provide accurate guidance.
What is the purpose of 3900 woodland avenue?
The purpose related to 3900 Woodland Avenue cannot be determined without additional context regarding the type of document or regulation associated with this address.
What information must be reported on 3900 woodland avenue?
The specific information that needs to be reported regarding 3900 Woodland Avenue would depend on the type of filing or reporting requirements applicable to this address.
Fill out your 3900 woodland avenue online with pdfFiller!
pdfFiller is an end-to-end solution for managing, creating, and editing documents and forms in the cloud. Save time and hassle by preparing your tax forms online.

3900 Woodland Avenue is not the form you're looking for?Search for another form here.
Relevant keywords
Related Forms
If you believe that this page should be taken down, please follow our DMCA take down process
here
.
This form may include fields for payment information. Data entered in these fields is not covered by PCI DSS compliance.