
Get the free Including suburb or LOTS 2, 3, 4 BRENT ROAD, YARRAWONGA
Show details
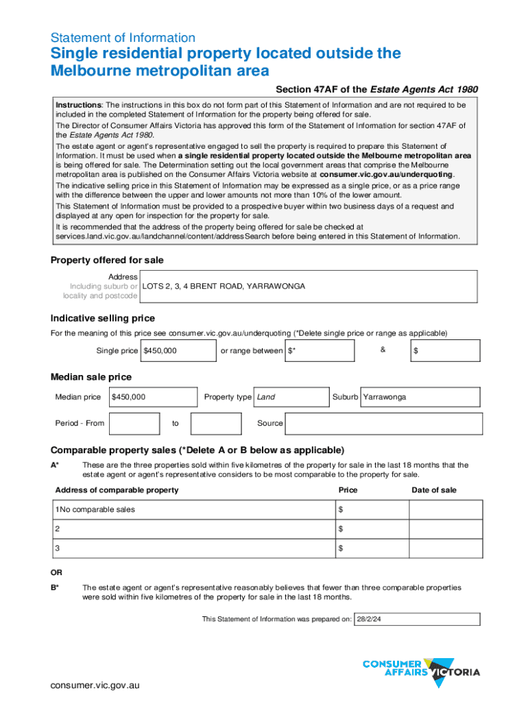
Statement of InformationSingle residential property located outside the Melbourne metropolitan area Section 47AF of the Estate Agents Act 1980 Instructions: The instructions in this box do not form
We are not affiliated with any brand or entity on this form
Get, Create, Make and Sign including suburb or lots

Edit your including suburb or lots form online
Type text, complete fillable fields, insert images, highlight or blackout data for discretion, add comments, and more.

Add your legally-binding signature
Draw or type your signature, upload a signature image, or capture it with your digital camera.

Share your form instantly
Email, fax, or share your including suburb or lots form via URL. You can also download, print, or export forms to your preferred cloud storage service.
Editing including suburb or lots online
Use the instructions below to start using our professional PDF editor:
1
Set up an account. If you are a new user, click Start Free Trial and establish a profile.
2
Upload a file. Select Add New on your Dashboard and upload a file from your device or import it from the cloud, online, or internal mail. Then click Edit.
3
Edit including suburb or lots. Rearrange and rotate pages, add and edit text, and use additional tools. To save changes and return to your Dashboard, click Done. The Documents tab allows you to merge, divide, lock, or unlock files.
4
Get your file. Select your file from the documents list and pick your export method. You may save it as a PDF, email it, or upload it to the cloud.
It's easier to work with documents with pdfFiller than you can have ever thought. You can sign up for an account to see for yourself.
Uncompromising security for your PDF editing and eSignature needs
Your private information is safe with pdfFiller. We employ end-to-end encryption, secure cloud storage, and advanced access control to protect your documents and maintain regulatory compliance.
How to fill out including suburb or lots

How to fill out including suburb or lots
01
Start by gathering all necessary information such as lot number or suburb name.
02
Fill out the required fields on the form with accurate information.
03
Double check all the information provided before submitting the form.
04
Make sure to include the suburb or lot details in the designated field.
Who needs including suburb or lots?
01
Individuals looking to purchase or rent a property in a specific suburb.
02
Real estate agents needing accurate information on specific lots or suburbs.
Fill
form
: Try Risk Free
For pdfFiller’s FAQs
Below is a list of the most common customer questions. If you can’t find an answer to your question, please don’t hesitate to reach out to us.
How do I make edits in including suburb or lots without leaving Chrome?
Install the pdfFiller Google Chrome Extension in your web browser to begin editing including suburb or lots and other documents right from a Google search page. When you examine your documents in Chrome, you may make changes to them. With pdfFiller, you can create fillable documents and update existing PDFs from any internet-connected device.
Can I create an eSignature for the including suburb or lots in Gmail?
It's easy to make your eSignature with pdfFiller, and then you can sign your including suburb or lots right from your Gmail inbox with the help of pdfFiller's add-on for Gmail. This is a very important point: You must sign up for an account so that you can save your signatures and signed documents.
How do I complete including suburb or lots on an iOS device?
In order to fill out documents on your iOS device, install the pdfFiller app. Create an account or log in to an existing one if you have a subscription to the service. Once the registration process is complete, upload your including suburb or lots. You now can take advantage of pdfFiller's advanced functionalities: adding fillable fields and eSigning documents, and accessing them from any device, wherever you are.
What is including suburb or lots?
Including suburb or lots refers to the specification of detailed information about the geographical or zoning areas in a property assessment or tax filing process.
Who is required to file including suburb or lots?
Those who own property within a defined locality, such as homeowners and businesses, are typically required to file including suburb or lots information.
How to fill out including suburb or lots?
To fill out including suburb or lots, one must provide accurate descriptions of the property location, such as the suburb name and lot number, as required by the local authority forms.
What is the purpose of including suburb or lots?
The purpose is to ensure accurate property assessment for tax purposes, zoning regulations, and to maintain updated public records.
What information must be reported on including suburb or lots?
Reported information includes the property address, suburb name, lot number, and any relevant zoning data.
Fill out your including suburb or lots online with pdfFiller!
pdfFiller is an end-to-end solution for managing, creating, and editing documents and forms in the cloud. Save time and hassle by preparing your tax forms online.

Including Suburb Or Lots is not the form you're looking for?Search for another form here.
Relevant keywords
Related Forms
If you believe that this page should be taken down, please follow our DMCA take down process
here
.
This form may include fields for payment information. Data entered in these fields is not covered by PCI DSS compliance.