Get the free Construction Permitting Determination Request ...
Show details
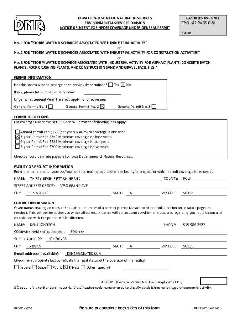
IOWA DEPARTMENT OF NATURAL RESOURCES
ENVIRONMENTAL SERVICES DIVISION
NOTICE OF INTENT FOR NODES COVERAGE UNDER GENERAL PERMITCASHIERS USE ONLY
0253542SW080581
Name No. 1 FOR \”STORM WATER DISCHARGES
We are not affiliated with any brand or entity on this form
Get, Create, Make and Sign construction permitting determination request
Edit your construction permitting determination request form online
Type text, complete fillable fields, insert images, highlight or blackout data for discretion, add comments, and more.
Add your legally-binding signature
Draw or type your signature, upload a signature image, or capture it with your digital camera.
Share your form instantly
Email, fax, or share your construction permitting determination request form via URL. You can also download, print, or export forms to your preferred cloud storage service.
How to edit construction permitting determination request online
To use our professional PDF editor, follow these steps:
1
Register the account. Begin by clicking Start Free Trial and create a profile if you are a new user.
2
Upload a file. Select Add New on your Dashboard and upload a file from your device or import it from the cloud, online, or internal mail. Then click Edit.
3
Edit construction permitting determination request. Rearrange and rotate pages, insert new and alter existing texts, add new objects, and take advantage of other helpful tools. Click Done to apply changes and return to your Dashboard. Go to the Documents tab to access merging, splitting, locking, or unlocking functions.
4
Get your file. When you find your file in the docs list, click on its name and choose how you want to save it. To get the PDF, you can save it, send an email with it, or move it to the cloud.
With pdfFiller, it's always easy to work with documents.
Uncompromising security for your PDF editing and eSignature needs
Your private information is safe with pdfFiller. We employ end-to-end encryption, secure cloud storage, and advanced access control to protect your documents and maintain regulatory compliance.
How to fill out construction permitting determination request
How to fill out construction permitting determination request
01
Gather all necessary information related to the construction project.
02
Contact the local building department or relevant authority to obtain the construction permitting determination request form.
03
Fill out the form completely and accurately, providing all required details such as project description, location, estimated cost, and building plans.
04
Submit the completed form along with any supporting documents and applicable fees to the appropriate authority.
05
Wait for the authority to review the request and provide a determination on whether a construction permit is required.
Who needs construction permitting determination request?
01
Developers or property owners planning to undertake construction projects that may require a permit.
02
Contractors or builders responsible for carrying out construction work.
03
Architects or engineers involved in designing and planning construction projects.
Fill
form
: Try Risk Free
For pdfFiller’s FAQs
Below is a list of the most common customer questions. If you can’t find an answer to your question, please don’t hesitate to reach out to us.
How can I manage my construction permitting determination request directly from Gmail?
pdfFiller’s add-on for Gmail enables you to create, edit, fill out and eSign your construction permitting determination request and any other documents you receive right in your inbox. Visit Google Workspace Marketplace and install pdfFiller for Gmail. Get rid of time-consuming steps and manage your documents and eSignatures effortlessly.
Can I sign the construction permitting determination request electronically in Chrome?
Yes. You can use pdfFiller to sign documents and use all of the features of the PDF editor in one place if you add this solution to Chrome. In order to use the extension, you can draw or write an electronic signature. You can also upload a picture of your handwritten signature. There is no need to worry about how long it takes to sign your construction permitting determination request.
How do I complete construction permitting determination request on an Android device?
Use the pdfFiller mobile app and complete your construction permitting determination request and other documents on your Android device. The app provides you with all essential document management features, such as editing content, eSigning, annotating, sharing files, etc. You will have access to your documents at any time, as long as there is an internet connection.
What is construction permitting determination request?
A construction permitting determination request is a formal process through which an individual or entity seeks clarification or a decision regarding the requirements and conditions necessary for obtaining a construction permit.
Who is required to file construction permitting determination request?
Any individual or organization planning to undertake construction activities that may require a permit from local authorities is typically required to file a construction permitting determination request.
How to fill out construction permitting determination request?
To fill out a construction permitting determination request, one must complete the appropriate form, providing information such as the project description, location, intended use, and any relevant site plans or drawings. It is important to follow the specific guidelines provided by the local authority.
What is the purpose of construction permitting determination request?
The purpose of a construction permitting determination request is to obtain official guidance on whether a proposed construction activity requires a permit, as well as to clarify any zoning, environmental, or code compliance issues that may be applicable.
What information must be reported on construction permitting determination request?
Information that must be reported includes the applicant's contact details, project address, description of the proposed work, any existing site conditions, and other relevant documentation or plans as required by the local permitting authority.
Fill out your construction permitting determination request online with pdfFiller!
pdfFiller is an end-to-end solution for managing, creating, and editing documents and forms in the cloud. Save time and hassle by preparing your tax forms online.
Construction Permitting Determination Request is not the form you're looking for?Search for another form here.
Relevant keywords
Related Forms
If you believe that this page should be taken down, please follow our DMCA take down process
here
.
This form may include fields for payment information. Data entered in these fields is not covered by PCI DSS compliance.