Get the free Application for Non-public Water Well Construction Permit
Show details
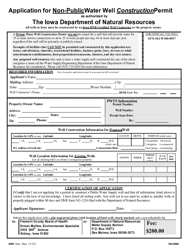
This document is an application for a permit to construct a non-public water well in Iowa. It outlines the necessary information required from the applicant, regulations regarding who can construct wells, and details on prohibited facilities. It emphasizes that all wells must be built by certified contractors and provides instructions for submitting the application along with fees.
We are not affiliated with any brand or entity on this form
Get, Create, Make and Sign application for non-public water
Edit your application for non-public water form online
Type text, complete fillable fields, insert images, highlight or blackout data for discretion, add comments, and more.
Add your legally-binding signature
Draw or type your signature, upload a signature image, or capture it with your digital camera.
Share your form instantly
Email, fax, or share your application for non-public water form via URL. You can also download, print, or export forms to your preferred cloud storage service.
How to edit application for non-public water online
To use the services of a skilled PDF editor, follow these steps below:
1
Sign into your account. It's time to start your free trial.
2
Simply add a document. Select Add New from your Dashboard and import a file into the system by uploading it from your device or importing it via the cloud, online, or internal mail. Then click Begin editing.
3
Edit application for non-public water. Text may be added and replaced, new objects can be included, pages can be rearranged, watermarks and page numbers can be added, and so on. When you're done editing, click Done and then go to the Documents tab to combine, divide, lock, or unlock the file.
4
Save your file. Select it from your records list. Then, click the right toolbar and select one of the various exporting options: save in numerous formats, download as PDF, email, or cloud.
With pdfFiller, it's always easy to work with documents. Try it!
Uncompromising security for your PDF editing and eSignature needs
Your private information is safe with pdfFiller. We employ end-to-end encryption, secure cloud storage, and advanced access control to protect your documents and maintain regulatory compliance.
How to fill out application for non-public water
How to fill out application for non-public water
01
Obtain the application form from the relevant local water authority or government agency.
02
Fill out the applicant's personal information, including name, address, and contact details.
03
Provide details about the property where the non-public water will be used, including the address and type of property.
04
Describe the purpose of the non-public water system (e.g., irrigation, household use).
05
Indicate the source of the non-public water supply (e.g., well, spring).
06
Include any relevant permits or previous approvals related to water usage.
07
Review the application for accuracy and completeness.
08
Submit the application to the appropriate authority, along with any required fees.
Who needs application for non-public water?
01
Individuals or households planning to use a private water supply for drinking, irrigation, or any other purpose that is not connected to the public water system.
02
Farmers or landowners needing water for agriculture or livestock.
03
Businesses or organizations establishing a water system for specific operational needs.
Fill
form
: Try Risk Free
For pdfFiller’s FAQs
Below is a list of the most common customer questions. If you can’t find an answer to your question, please don’t hesitate to reach out to us.
How do I modify my application for non-public water in Gmail?
It's easy to use pdfFiller's Gmail add-on to make and edit your application for non-public water and any other documents you get right in your email. You can also eSign them. Take a look at the Google Workspace Marketplace and get pdfFiller for Gmail. Get rid of the time-consuming steps and easily manage your documents and eSignatures with the help of an app.
How do I execute application for non-public water online?
pdfFiller has made it easy to fill out and sign application for non-public water. You can use the solution to change and move PDF content, add fields that can be filled in, and sign the document electronically. Start a free trial of pdfFiller, the best tool for editing and filling in documents.
Can I create an eSignature for the application for non-public water in Gmail?
With pdfFiller's add-on, you may upload, type, or draw a signature in Gmail. You can eSign your application for non-public water and other papers directly in your mailbox with pdfFiller. To preserve signed papers and your personal signatures, create an account.
What is application for non-public water?
An application for non-public water is a formal request made to obtain permission to use water sources that are not publicly supplied, typically for private domestic, agricultural, or industrial purposes.
Who is required to file application for non-public water?
Any individual or entity seeking to utilize non-public water sources, such as private wells, must file an application. This includes homeowners, farmers, and businesses that intend to extract water for private use.
How to fill out application for non-public water?
To fill out the application for non-public water, you must provide relevant details such as the purpose of water use, location of the water source, estimated quantity of water required, and any other necessary documentation as specified by the governing authority.
What is the purpose of application for non-public water?
The purpose of the application for non-public water is to regulate water use to ensure sustainable management of water resources, protect public health, and comply with local, state, or federal laws governing water usage.
What information must be reported on application for non-public water?
The application must include information such as the applicant's contact details, the intended use of the water, the specific location of the water source, estimated water withdrawal rates, and any supporting documents required.
Fill out your application for non-public water online with pdfFiller!
pdfFiller is an end-to-end solution for managing, creating, and editing documents and forms in the cloud. Save time and hassle by preparing your tax forms online.
Application For Non-Public Water is not the form you're looking for?Search for another form here.
Relevant keywords
Related Forms
If you believe that this page should be taken down, please follow our DMCA take down process
here
.
This form may include fields for payment information. Data entered in these fields is not covered by PCI DSS compliance.