Get the free Consultant Agreement
Show details
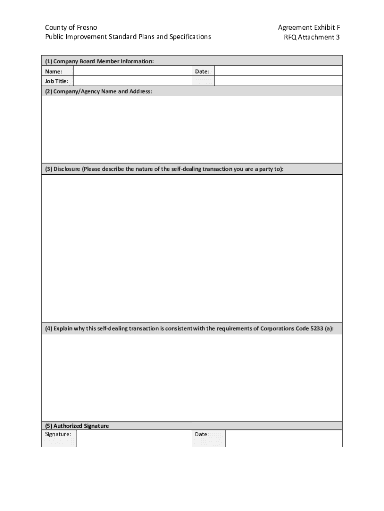
This document outlines the terms and conditions of the agreement between the County of Fresno and a contractor for engineering consulting services. It includes provisions for project management, services
We are not affiliated with any brand or entity on this form
Get, Create, Make and Sign consultant agreement
Edit your consultant agreement form online
Type text, complete fillable fields, insert images, highlight or blackout data for discretion, add comments, and more.
Add your legally-binding signature
Draw or type your signature, upload a signature image, or capture it with your digital camera.
Share your form instantly
Email, fax, or share your consultant agreement form via URL. You can also download, print, or export forms to your preferred cloud storage service.
Editing consultant agreement online
Follow the guidelines below to use a professional PDF editor:
1
Create an account. Begin by choosing Start Free Trial and, if you are a new user, establish a profile.
2
Prepare a file. Use the Add New button to start a new project. Then, using your device, upload your file to the system by importing it from internal mail, the cloud, or adding its URL.
3
Edit consultant agreement. Add and change text, add new objects, move pages, add watermarks and page numbers, and more. Then click Done when you're done editing and go to the Documents tab to merge or split the file. If you want to lock or unlock the file, click the lock or unlock button.
4
Save your file. Select it from your list of records. Then, move your cursor to the right toolbar and choose one of the exporting options. You can save it in multiple formats, download it as a PDF, send it by email, or store it in the cloud, among other things.
With pdfFiller, it's always easy to work with documents. Try it out!
Uncompromising security for your PDF editing and eSignature needs
Your private information is safe with pdfFiller. We employ end-to-end encryption, secure cloud storage, and advanced access control to protect your documents and maintain regulatory compliance.
How to fill out consultant agreement
How to fill out consultant agreement
01
Begin with the title 'Consultant Agreement' at the top of the document.
02
Clearly state the names and contact information of both parties: the consultant and the client.
03
Define the scope of work by detailing the services the consultant will provide.
04
Specify the duration of the agreement, including start date and end date.
05
Outline the payment terms, including fees, payment schedule, and any reimbursement for expenses.
06
Include confidentiality clauses to protect sensitive information shared between parties.
07
Specify the terms for termination of the agreement, including notice requirements.
08
Include any additional terms or conditions relevant to the specific consulting arrangement.
09
Ensure both parties sign and date the agreement to make it legally binding.
Who needs consultant agreement?
01
Businesses hiring external expertise for specific projects.
02
Freelancers offering specialized services to clients.
03
Organizations needing contract workers for short-term engagements.
04
Consultants seeking formal agreements to outline their terms and protect their interests.
Fill
form
: Try Risk Free
For pdfFiller’s FAQs
Below is a list of the most common customer questions. If you can’t find an answer to your question, please don’t hesitate to reach out to us.
How can I manage my consultant agreement directly from Gmail?
You may use pdfFiller's Gmail add-on to change, fill out, and eSign your consultant agreement as well as other documents directly in your inbox by using the pdfFiller add-on for Gmail. pdfFiller for Gmail may be found on the Google Workspace Marketplace. Use the time you would have spent dealing with your papers and eSignatures for more vital tasks instead.
How do I make changes in consultant agreement?
With pdfFiller, the editing process is straightforward. Open your consultant agreement in the editor, which is highly intuitive and easy to use. There, you’ll be able to blackout, redact, type, and erase text, add images, draw arrows and lines, place sticky notes and text boxes, and much more.
How do I fill out consultant agreement using my mobile device?
On your mobile device, use the pdfFiller mobile app to complete and sign consultant agreement. Visit our website (https://edit-pdf-ios-android.pdffiller.com/) to discover more about our mobile applications, the features you'll have access to, and how to get started.
What is consultant agreement?
A consultant agreement is a legal document that outlines the terms and conditions between a consultant and a client for the provision of consulting services.
Who is required to file consultant agreement?
Typically, both the consultant and the client are required to retain a signed consultant agreement to clarify responsibilities and expectations; it may be mandated by organizational policies or laws in certain jurisdictions.
How to fill out consultant agreement?
To fill out a consultant agreement, include essential details such as the names of the parties, the scope of services, payment terms, confidentiality clauses, duration of the agreement, and any termination conditions.
What is the purpose of consultant agreement?
The purpose of a consultant agreement is to legally formalize the relationship between the consultant and the client, ensuring that both parties are clear on their obligations, deliverables, and payment terms.
What information must be reported on consultant agreement?
Information that must be reported includes the parties' names and contact information, services to be provided, timeline for deliverables, payment structure, confidentiality clauses, and terms for termination or amendment.
Fill out your consultant agreement online with pdfFiller!
pdfFiller is an end-to-end solution for managing, creating, and editing documents and forms in the cloud. Save time and hassle by preparing your tax forms online.
Consultant Agreement is not the form you're looking for?Search for another form here.
Relevant keywords
Related Forms
If you believe that this page should be taken down, please follow our DMCA take down process
here
.
This form may include fields for payment information. Data entered in these fields is not covered by PCI DSS compliance.