Get the free C295439-04 Middle Big Creek Wwtf Phase 2 Expansion
Show details
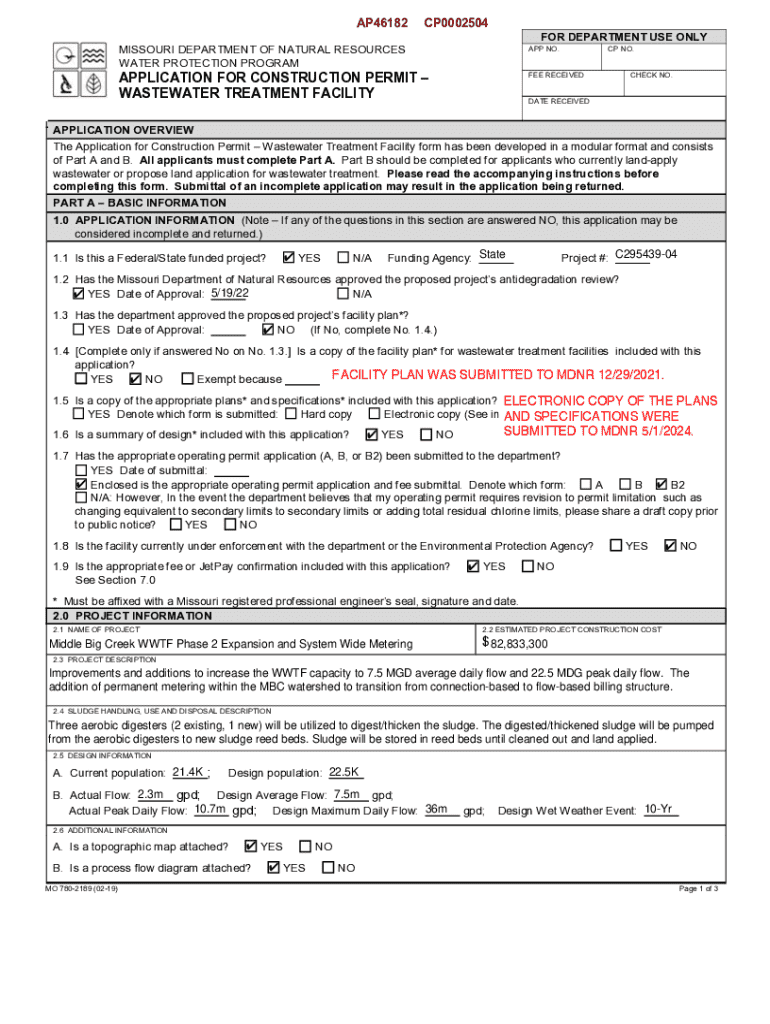
This document is a construction permit issued by the Missouri Department of Natural Resources for the Phase 2 expansion of the Little Blue Valley Sewer District\'s Middle Big Creek Wastewater Treatment
We are not affiliated with any brand or entity on this form
Get, Create, Make and Sign c295439-04 middle big creek
Edit your c295439-04 middle big creek form online
Type text, complete fillable fields, insert images, highlight or blackout data for discretion, add comments, and more.
Add your legally-binding signature
Draw or type your signature, upload a signature image, or capture it with your digital camera.
Share your form instantly
Email, fax, or share your c295439-04 middle big creek form via URL. You can also download, print, or export forms to your preferred cloud storage service.
How to edit c295439-04 middle big creek online
To use our professional PDF editor, follow these steps:
1
Register the account. Begin by clicking Start Free Trial and create a profile if you are a new user.
2
Simply add a document. Select Add New from your Dashboard and import a file into the system by uploading it from your device or importing it via the cloud, online, or internal mail. Then click Begin editing.
3
Edit c295439-04 middle big creek. Add and change text, add new objects, move pages, add watermarks and page numbers, and more. Then click Done when you're done editing and go to the Documents tab to merge or split the file. If you want to lock or unlock the file, click the lock or unlock button.
4
Get your file. When you find your file in the docs list, click on its name and choose how you want to save it. To get the PDF, you can save it, send an email with it, or move it to the cloud.
The use of pdfFiller makes dealing with documents straightforward. Try it now!
Uncompromising security for your PDF editing and eSignature needs
Your private information is safe with pdfFiller. We employ end-to-end encryption, secure cloud storage, and advanced access control to protect your documents and maintain regulatory compliance.
How to fill out c295439-04 middle big creek
How to fill out c295439-04 middle big creek
01
Locate the c295439-04 middle big creek form.
02
Gather all necessary information required for the form.
03
Fill out the fields with accurate details, ensuring to double-check for errors.
04
Attach any necessary documentation that supports your application.
05
Review the completed form to ensure all sections are filled.
06
Submit the form by the specified deadline.
Who needs c295439-04 middle big creek?
01
Individuals or organizations seeking to access services related to middle big creek.
02
Residents living near or in the vicinity of middle big creek.
03
Environmental agencies monitoring the health of the creek.
04
Local government bodies involved in managing the creek.
Fill
form
: Try Risk Free
For pdfFiller’s FAQs
Below is a list of the most common customer questions. If you can’t find an answer to your question, please don’t hesitate to reach out to us.
How can I modify c295439-04 middle big creek without leaving Google Drive?
Using pdfFiller with Google Docs allows you to create, amend, and sign documents straight from your Google Drive. The add-on turns your c295439-04 middle big creek into a dynamic fillable form that you can manage and eSign from anywhere.
How do I execute c295439-04 middle big creek online?
pdfFiller has made it easy to fill out and sign c295439-04 middle big creek. You can use the solution to change and move PDF content, add fields that can be filled in, and sign the document electronically. Start a free trial of pdfFiller, the best tool for editing and filling in documents.
How do I make edits in c295439-04 middle big creek without leaving Chrome?
Install the pdfFiller Google Chrome Extension in your web browser to begin editing c295439-04 middle big creek and other documents right from a Google search page. When you examine your documents in Chrome, you may make changes to them. With pdfFiller, you can create fillable documents and update existing PDFs from any internet-connected device.
What is c295439-04 middle big creek?
c295439-04 middle big creek refers to a specific designation or code related to a geographic or environmental entity, possibly a regulatory document or process associated with land use or environmental impact assessment.
Who is required to file c295439-04 middle big creek?
Entities or individuals involved in activities that impact the middle big creek area, such as developers, landowners, or companies conducting environmental assessments, may be required to file the c295439-04 document.
How to fill out c295439-04 middle big creek?
To fill out c295439-04 middle big creek, individuals should obtain the official form, provide accurate information regarding the project or activity, and follow the specific instructions outlined in the accompanying guidelines.
What is the purpose of c295439-04 middle big creek?
The purpose of c295439-04 middle big creek is to ensure compliance with environmental regulations, assess the impact of proposed projects on the creek, and maintain ecological integrity.
What information must be reported on c295439-04 middle big creek?
Required information on c295439-04 middle big creek typically includes details about the project, geographical coordinates, estimated environmental impact, mitigation measures, and any relevant historical data pertaining to the creek.
Fill out your c295439-04 middle big creek online with pdfFiller!
pdfFiller is an end-to-end solution for managing, creating, and editing documents and forms in the cloud. Save time and hassle by preparing your tax forms online.
c295439-04 Middle Big Creek is not the form you're looking for?Search for another form here.
Relevant keywords
If you believe that this page should be taken down, please follow our DMCA take down process
here
.
This form may include fields for payment information. Data entered in these fields is not covered by PCI DSS compliance.