Obtener el gratis Business Tax Receipt Renewal Application Hialeah, FL
Mostrar detalles
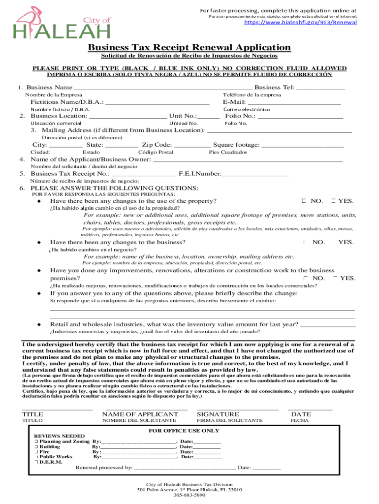
For faster processing, complete this application online at
Para un procesamiento ms radio, complete ESTA solicited en el internethttps://www.hialeahfl.gov/913/RenewalBusiness Tax Receipt Renewal Application
Solicited
No estamos afiliados con ninguna marca o entidad en este formulario
Obtener, crear y firmar obtener el gratis business
Edita tu obtener el gratis business formulario en línea
Escriba texto, campos llenos, inserte imágenes, resalte o borre datos para su discreción, añada comentarios y más.
Añade tu firma legalmente vinculante
Dibuja o escriba su firma, cargue una imagen de firma o la capture con su cámara digital.
Comparte tu formulario al instante
Email, fax, o compartir su obtener el gratis business vía URL. También puede descargar, imprimir o exportar formularios a su servicio de almacenamiento en la nube preferido.
La manera de cambiar obtener el gratis business en línea
Manténgase a las recomendaciones a continuación para aproveche el editor de PDF profesional:
1
Iniciar sesión a su cuenta. Haga clic en Empezar Prueba gratuita y cree una cuenta un información cuando usted no tiene uno en particular sin embargo.
2
Publicar un documento. Seleccionar Agregar nuevos en su Tablero de control y cambiar datos en el proceso en uno de los siguiente maneras: cargando desde gadget o importándolo desde su nube y website, o interior mail. Luego, haga clic en Empezar editando y mejorando.
3
Editar obtener el gratis business. Agregar y intercambiar mensaje de texto, colocar nuevos cosas, organizar páginas web, añadir marcas de agua y página cifras, y más. Simplemente haga clic Llevado a cabo mientras esté concluido modificando y mirar la pestaña Documentos para combinar , dividir, bloquear o descubrir el archivo.
4
Compre su documento. Encuentre el etiqueta de su respectivo enviar dentro del documentos listado y selecciona tu elegido exportando método. Puede adquirir como un un PDF, conservar en uno más formatear, enviar por correo electrónico, o mover hacia la nube.
Con pdfFiller, manejar papeleo siempre fácil. Pruébelo ahora!
Seguridad sin concesiones para tus necesidades de edición de PDF y firma electrónica
Tu información privada está segura con pdfFiller. Utilizamos cifrado de extremo a extremo, almacenamiento seguro en la nube y control de acceso avanzado para proteger tus documentos y mantener el cumplimiento normativo.
Cómo rellenar obtener el gratis business
Cómo completar business tax receipt renewal
01
Primero asegúrese de tener todos los documentos necesarios para la renovación del Recibo de Impuestos Comerciales.
02
Llene el formulario de renovación proporcionado por la oficina correspondiente.
03
Pague la tarifa de renovación requerida.
04
Presente la documentación y el comprobante de pago en la oficina de impuestos para procesar la renovación.
05
Una vez aprobada la renovación, recibirá su nuevo Recibo de Impuestos Comerciales.
¿Quién necesita business tax receipt renewal?
01
Todas las empresas o individuos que operen un negocio en una ubicación específica y estén sujetos al impuesto sobre negocios en esa área necesitan renovar su Recibo de Impuestos Comerciales.
Rellenar
form
: Pruébalo sin riesgos
Para las preguntas frecuentes de pdfFiller
A continuación se muestra una lista de las preguntas más comunes de los clientes. Si no puede encontrar una respuesta a su pregunta, no dude en comunicarse con nosotros.
¿Cómo puedo? editar obtener el gratis business directamente desde mi teléfono celular?
Eso se puede hacer rápidamente con las software de pdfFiller para iOS y Teléfono móvil Android unidades, que se pueden encontrar en el Apple Tienda y Yahoo y google Disfrutar Tienda, respectivamente. Además, puede obtener la aplicación en nuestra sitio web: https://edit-pdf-ios-android.pdffiller.com/. Poner el formulario de solicitud, iniciar sesión, y comenzar mejorando obtener el gratis business sin demora.
¿Cómo? enviar obtener el gratis business usando mi teléfono móvil ?
Utilice pdfFiller teléfono móvil aplicación para realizar y indicador obtener el gratis business por su cuenta dispositivo móvil. Pagar una visita a nuestra página web (https://edit-pdf-ios-android.pdffiller.com/) para obtener más información sobre nuestras aplicaciones móviles, las habilidades usted obtendrá acceso a , y el métodos para tomar para adquirir funcionando.
Cómo llenar obtener el gratis business en un iOS dispositivo?
Obtenga e instale la software pdfFiller para iOS. Siguiente, abrir la aplicación e iniciar sesión o producir una cuenta de comerciante para obtener acceso a {todos los|todos los|cada uno de los|cada uno de mejora de la solución características. Para abrir su obtener el gratis business, añadir desde su producto o nube almacenamiento, o ingresar al registro Dirección web. Una vez que comprcompleto todos los necesario áreas dentro del registro y Firmarlo electrónicamente (si eso es necesario), puede guardarlo o revelarlo con otros.
¿Qué es business tax receipt renewal?
El renewa de la licencia de impuestos comerciales es el proceso de renovar la licencia requerida para operar un negocio y pagar las tarifas correspondientes.
¿Quién debe presentar business tax receipt renewal?
Todos los propietarios de negocios que operan en un área específica y que están obligados a tener una licencia de impuestos comerciales deben presentar la renovación de la misma.
¿Cómo completar business tax receipt renewal?
Para completar la renovación de la licencia de impuestos comerciales, los propietarios de negocios deben llenar el formulario de solicitud correspondiente y pagar las tarifas requeridas.
¿Cuál es el propósito de business tax receipt renewal?
El propósito de renovar la licencia de impuestos comerciales es garantizar que los negocios cumplan con las regulaciones locales y continúen operando de manera legal.
¿Qué información se debe reportar en business tax receipt renewal?
En la renovación de la licencia de impuestos comerciales se debe reportar información sobre la actividad comercial, ingresos generados, ubicación del negocio, entre otros datos relevantes.
Llena tu obtener el gratis business en línea con pdfFiller!
pdfFiller es una solución integral para administrar, crear y editar documentos y formularios en la nube. Ahorre tiempo y molestias preparando sus formularios de impuestos en línea.
Obtener El Gratis Business ¿No es la forma que estás buscando?Busque otro formulario aquí.
Palabras clave relevantes
Formularios relacionados
Si crees que esta página se debe eliminar, sigue nuestro proceso de eliminación DMCA
aquí
.
Este formulario puede incluir campos para la información de pago. Los datos ingresados en estos campos no están cubiertos por el cumplimiento de PCI DSS.